Szenografie/Interior Design

Das Tauschregal

Emma Bredemeier

Semesterprojekt im Bachelor /
Sommersemester 2024

Projektbetreuung:
Prof.in Dr. Sandra Schramke, Prof.in Frauke Gerstenberg

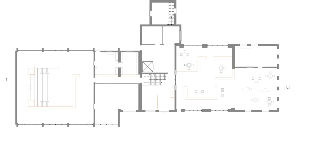
Dieses Konzept basiert auf der Idee, durch den Austausch eine Kettenreaktion zu entfachen. Durch das Tauschen von Objekten sowie von Leistungen sind die Möglichkeiten des Austauschs endlos. Standort der Tauschbörse als Kulturtreffpunkt ist ein altes Feuerwehrhaus auf dem MFG 5 Gelände in Kiel. Im Erdgeschoss zieht sich ein Holzregal wie eine Ader durch die Räume und verbindet die verschiedenen Tausch Bereiche miteinander. Als Raumskulptur kann es Gegenstände aufnehmen, die getauscht werden können, Sitzgelegenheiten bieten oder auch als eine Umkleide zur Anprobe der Klamotten von der Tauschstange dienen. Im Untergeschoss findet sozialer und Warentausch statt sowie das Ausleihen von Spiel- und Werkzeug. Das Obergeschoss wird für den Tausch von Wissen genutzt – hier wird Wissen in Form von Workshops getauscht. Ein Tausch wird zur Kettenreaktion: Das Buch wird zum Lampenschirm, der Lampenschirm zu einem Café-Besuch, der Besuch führt zu neuen Bekanntschaften.
This concept is based on the idea of sparking a chain reaction through exchange. By swapping objects and services, the possibilities for exchange are endless. The location of the barter exchange as a cultural meeting point is an old fire station on the MFG 5 site in Kiel. On the first floor, a wooden shelf runs like a vein through the rooms and connects the various exchange areas with each other. As a spatial sculpture, it can hold items that can be swapped, offer seating or also serve as a changing room for trying on clothes from the swap pole. Visitors move in and around the swap rack. The lower floor is used for social and goods swaps as well as for borrowing toys and tools. The upper floor is used for the exchange of knowledge - knowledge is exchanged here in the form of workshops. An exchange becomes a chain reaction: the book becomes a lampshade, the lampshade becomes a visit to the café, the visit leads to new acquaintances.
Nächstes Projekt: Empathy Hub